Na sprzedaż 2-pokojowe mieszkanie z balkonem – Tychy, ul. Edukacji 68
Szukasz mieszkania z potencjałem, które urządzisz dokładnie tak, jak chcesz? A może rozważasz zakup nieruchomości pod inwestycję? Ta oferta może być właśnie dla Ciebie.
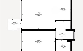
Na sprzedaż mieszkanie o powierzchni 35,2 m², położone w Tychach przy ul. Edukacji, na 4. piętrze w budynku wysokiej zabudowy. Lokal wyróżnia się funkcjonalnym układem pomieszczeń oraz dużymi możliwościami aranżacyjnymi.
Przemyślany układ pomieszczeń
Mieszkanie składa się z dwóch niezależnych pokoi.
Salon z aneksem kuchennym stanowi jasną przestrzeń dzienną z wyjściem na balkon, idealną do odpoczynku i codziennego funkcjonowania. Drugi pokój świetnie sprawdzi się jako sypialnia, pokój dla dziecka lub gabinet. Do dyspozycji jest również łazienka z WC oraz przedpokój z miejscem na zabudowę szafy, co pozwala na stworzenie dodatkowej przestrzeni do przechowywania.
Do mieszkania przynależy również piwnica o powierzchni około 1 m².
Stan techniczny i instalacje
W mieszkaniu zamontowane są okna PCV. Lokal posiada instalację gazową, a ciepła woda podgrzewana jest za pomocą junkersa. Ogrzewanie zapewnia centralne ogrzewanie miejskie.
Stan mieszkania – stwórz wnętrze po swojemu
Lokal jest do remontu, co daje przyszłemu właścicielowi pełną swobodę aranżacji – od układu kuchni, przez wybór materiałów, aż po styl wykończenia. To doskonała okazja, by stworzyć wnętrze dopasowane do własnych potrzeb lub przygotować atrakcyjną nieruchomość inwestycyjną.
Zdjęcia zamieszczone w ogłoszeniu przedstawiają przykładowe możliwości aranżacyjne i pokazują, w jaki sposób można zagospodarować przestrzeń po remoncie.
Stan prawny – bezpieczny zakup
Mieszkanie stanowi pełną własność, ma księgę wieczystą. Możliwość zakupu mieszkania także wspomagając się kredytem.
Lokalizacja i infrastruktura
Nieruchomość położona jest w dogodnej lokalizacji, zapewniającej dostęp do niezbędnej infrastruktury. W niedalekiej odległości znajdują się sklepy spożywcze, apteka, przedszkole, szkoła oraz kościół. W pobliżu dostępny jest również sklep Netto, co dodatkowo podnosi komfort codziennego życia.
Dla kogo?
To mieszkanie będzie idealnym wyborem dla singla lub pary, szukających kompaktowej przestrzeni w dobrej lokalizacji, dla osób chcących stworzyć pierwsze mieszkanie od podstaw, a także dla inwestorów – układ dwóch pokoi sprzyja wynajmowi długoterminowemu.
Dlaczego warto?
Funkcjonalny układ z dwoma niezależnymi pokojami, balkon zwiększający komfort codziennego życia, duży potencjał aranżacyjny oraz atrakcyjna opcja inwestycyjna sprawiają, że jest to oferta godna uwagi. Dodatkowym atutem jest spokojna lokalizacja w Tychach z dostępem do infrastruktury miejskiej.
Cena nieruchomości wynosi 260 000 zł.
Oferta na wyłączność dostępna w moim biurze, zapraszam do współpracy.
Zapraszam do kontaktu i umówienia się na prezentację.



